Nieuwbouw Kronenburgsingel | Arnhem

Portaal transformeert twee kantoorgebouwen aan de Kronenburgsingel 8 en 12 naar in totaal 102 sociale huurwoningen. Tussen deze twee gebouwen komt een nieuw gebouw: Kronenburgsingel 10, waarin 37 betaalbare koopwoningen worden gerealiseerd door dezelfde ontwikkelaar. Dit grote project biedt unieke kansen voor woningzoekenden in Arnhem-Zuid.

De locatie
De locatie ligt in Kronenburg, het hart van Arnhem-Zuid. De wijk, gerealiseerd in de jaren ’70 en ’80, kenmerkt zich door hoogbouw en een compact stedelijk milieu. Kronenburg krijgt de komende jaren een nieuwe impuls: groener, duurzamer, levendiger en sociaal sterker. Er is ruimte voor nieuwe woningen en aandacht voor de openbare ruimte. Deze plek verandert van een kantoorzone naar een aangename woonomgeving.
Op loopafstand vind je alles wat je nodig hebt, zoals het winkelcentrum Kronenburg en verschillende scholen. De keuze voor Kronenburgsingel is niet toevallig: met zijn centrale ligging en uitstekende bereikbaarheid biedt deze locatie een perfecte mix van bestaande en toekomstige faciliteiten.

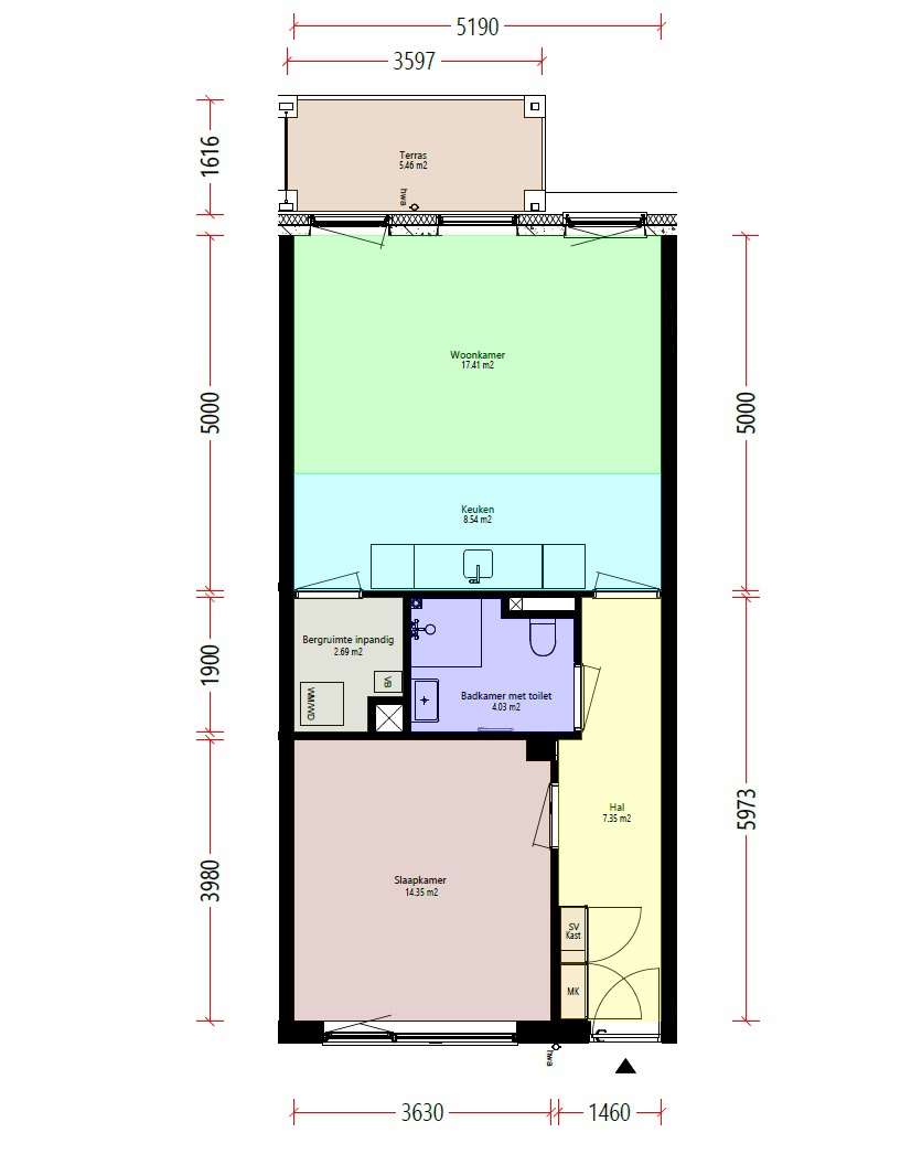
Appartementen
In de kantoorgebouwen realiseren we een mix van verschillende soorten appartementen: van studio’s tot grotere 3-kamerappartementen. Het complex krijgt een grote gezamenlijke tuin en parkeerplaatsen op eigen terrein.

Bewoners en 'Van Groot naar Beter'
We richten ons vooral op starters en doorstromers. Starters zoeken hun eerste woning, terwijl doorstromers kleiner willen wonen waardoor hun huidige (gezins)woning vrijkomt. Ook bieden we kansen aan mensen die door omstandigheden dringend een woning nodig hebben. Zo ontstaat een gemêleerde, inclusieve woongemeenschap.
Een groot deel van de 3-kamerappartementen in Kronenburg wordt verhuurd met het voorrangslabel ‘Van Groot naar Beter’. Dit label is bedoeld voor huurders die van een grotere sociale huurwoning naar een kleinere willen verhuizen. Woningen met dit label zijn herkenbaar aan de oranje balk op Entree.nu. Wilt u in aanmerking komen voor het label? Dan moet aan aan bepaalde voorwaarden voldoen, neem contact op met Portaal.

Bouwupdate

  • Kronenburgsingel 12: De appartementen zijn geplaatst. We werken nu aan de afbouw en binnenwerkzaamheden.
  • Kronenburgsingel 8: De verdiepingen zijn leeggeruimd. We maken de buitenkant gereed en zijn gestart met het inbouwen van de appartementen.
  • Nieuw gebouw (koopwoningen) Kronenburgsingel 10: De bouw is gestart in oktober 2025.

Verhuurprocedure
De woningen worden in fases opgeleverd in 2026.

  • De woningen worden aangeboden via Entree.nu.
  • Afhankelijk van het woningtype vindt de toewijzing plaats via loting of meettijd.

Woningtypen in eerste ronde:

  • 2-kamerappartementen (meettijd)
  • 2-kamerappartementen voor jongeren t/m 27 jaar (loting)
  • 3-kamer levensloopgeschikte appartementen (meettijd)
  • 3-kamerappartementen voor ‘groot naar beter’ (meettijd)

Oplevering

  • De woningen worden op verschillende fases in 2026 opgeleverd.
  • De woningen die als eerste worden opgeleverd, komen nu beschikbaar voor verhuur.