Nieuwbouw Paramaribo- en Corantijnstraat | Leiden
Over het project
De drie Portaal portiekflats aan de Paramaribo- en Corantijnstraat zijn voor de zomer van 2024 gesloopt. Portaal bouwt 176 nieuwe huurappartementen voor terug. Dit is onderdeel van de missie van Portaal: bijdragen aan goed samenleven. We willen dat bewoners prettig kunnen wonen in comfortabele, goed geïsoleerde woningen die betaalbaar zijn en passend bij hun levensfase.
De woningen bieden plek voor 176 appartementen in de sociale huur. Er komen 2-, 3- en 4- kamerappartementen in het gebouw. Er is bewust ruimte tussen de gebouwen gelaten, om het geheel zo open mogelijk te maken. Ook maakt de opzet het realiseren van verschillende openbare ruimten mogelijk, denk hierbij aan ruimte voor een autovrij woonstraatje en twee groene binnentuinen. Door dit soort verschillende plekken waar bewoners elkaar kunnen ontmoeten willen we een prettige buurt voor u creëren. Meer informatie over het ontwerp vindt u op de site van het architectenbureau Zijdekwartier. Dit project is mede mogelijk gemaakt met de financiële steun van de Provincie Zuid-Holland.
Woninggrootte
Er komen in het gebouw 15 verschillende woningtypes. De gebruiksoppervlakte van de woningen is als ongeveer:
2 kamerappartementen – 58 m2
3 kamerappartementen – 70 m2
4 kamerappartementen – 80 m2
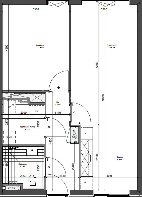
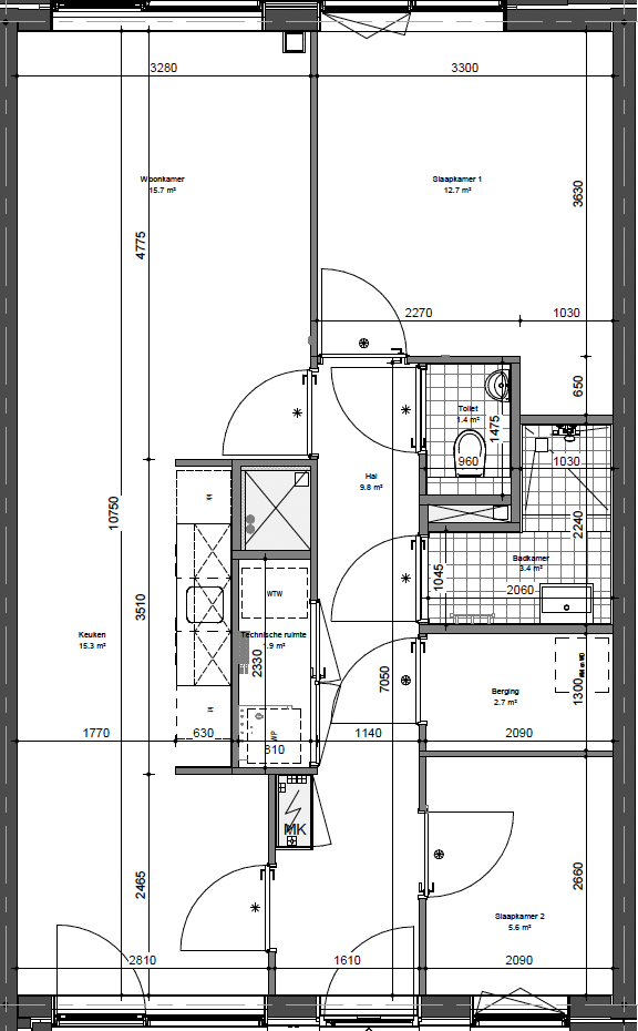
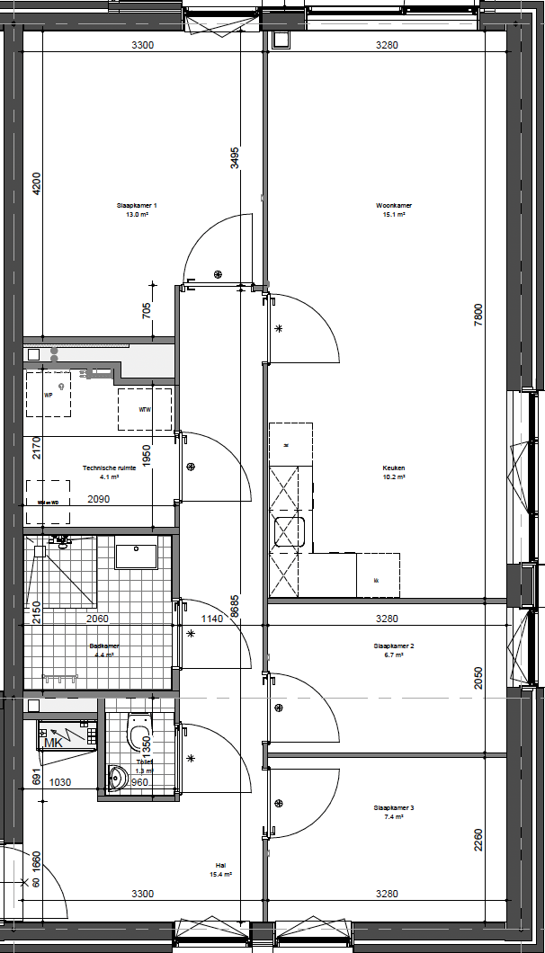
U ziet hieronder enkele plattegronden van de meest voorkomende type 2-, 3- en 4-appartementen:

2-kamerappartement

3-kamerappartement

4-kamerappartement
Er zit geen losse berging bij de woningen. Wel krijgt iedere woning een bijbehorend aantal fiets-parkeerplekken in algemene fietsparkeerruimte (2-kmr: 2, 3-kmr: 3, 4-kmr: 4).
Parkeren
Het is belangrijk om te weten dat alle nieuwe bewoners, terugkeerders of nieuwe bewoners, niet in aanmerking komen voor een parkeervergunning. Dit is onderdeel van het parkeerbeleid van gemeente Leiden om zo minder auto’s op straat te krijgen en meer groen in de omgeving.
Lijken deze woningen u wel wat?
De voormalige bewoners kunnen met voorrang terugkeren naar de nieuwbouw. Zodra de woningen klaar zijn, biedt Portaal de overgebleven woningen aan op www.hureninhollandrijnland.nl. We bepalen de exacte details voor de woningtoewijzing en de huurprijzen in de loop van 2026 op basis van de dan geldende landelijke en lokale regels.
Heeft u vragen?
Heeft u vragen over het project in het algemeen of over de leefbaarheid in de omgeving? Stuurt u een e-mail naar corantijn@portaal.nl.
Communicatie over de bouw gebeurt door ERA Contour
Eerdere nieuwsbrieven werden rondgestuurd door Portaal. Vanaf de zomer 2024 verzorgt aannemer ERA Contour de communicatie rond de bouw. Zij doen dit digitaal.
U leest nieuwsberichten over voortgang van de bouw op: www.eracontourbouwt.nl/projecten/corantijn-en-paramaribostraat. U kunt zich hier ook opgeven voor hun digitale nieuwsbrief.